Bulu tangkis adalah salah satu cabang olahraga yang paling populer di Indonesia. Ada banyak sekali atlit Indonesia yang sudah mendunia dengan sekarung prestasi. Bahkan banyak atlit Indonesia yang memenangkan kejuaraan bulu tangkis kelas asia maupun dunia. Indonesia yang sanggup merebut juara dari tahun ketahun memberikan motivasi pada penerus bangsa dan berhasil mencetak atlet muda.
Namun akhir – akhir ini prestasi atlit bulu tangkis Indonesia mulai menurun. Yang barusan mencuat di dunia adalah prestasi dunia di kancah All England tahun 2016, juara ganda campuran yang berhasil disabet dengan mengalahkan pasangan dari Denmark.

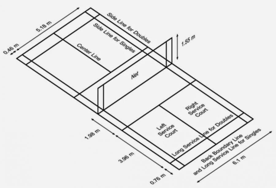
Kamu yang sekarang mendalami bulu tangkis harus mengetahui berbagai perlengkapan dan ukuran dari lapangan bulu tangkis. Hal tersebut diperlukan agar kamu lebih dapat mengatur strategi. Sesuai standar internasional, ukuran lapangan bulu tangkis dibedakan menurut usia pemainnya.
Untuk anak dengan usia sampai 9 tahun, panjang lapangan yang digunakan 10,05 m x 4,40 m yang digunakan sebagai lebarnya. Untuk usia 9 sampai 12 tahun dapat menggunakan lapangan dengan panjang 11,88 m dan lebar 5,18 m. Ukuran yang sama dengan lapangan pertandingan bulu tangkis tunggal.
Pada kategori dewasa, panjang lapangan yang digunakan 11,88 m dengan lebar 5,18 m. Jarak antara garis service sampai dengan net 1,98 m, untuk jarak antara kedua garis service adalah 3,96 m. Untuk tiang net yang digunakan dengan tinggi 1,55 meter, namun yang digunakan untuk menggantung net hanya 1,52 meter saja.

Ukuran lapangan akan berbeda jika yang bermain adalah pemain ganda. Panjang lapangan yang digunakan pada permainan ganda adalah 13,40 meter dengan lebar 6,10 meter. Untuk jarak net dengan garis service adalah 1,98 meter, sedangkan antar kedua garis service jaraknya adalah 4,72 meter. Tinggi tiang net yang digunakan sama dengan tiang net yang digunakan pada pertandingan bulu tangkis tunggal.

Dengan kamu mengetahui informasi diatas, kamu dapat mengatur strategi dan bahkan memungkinkan kamu untuk memperkirakan jatuhnya kok yang datang padamu atau yang kamu pukul kearah lawan.